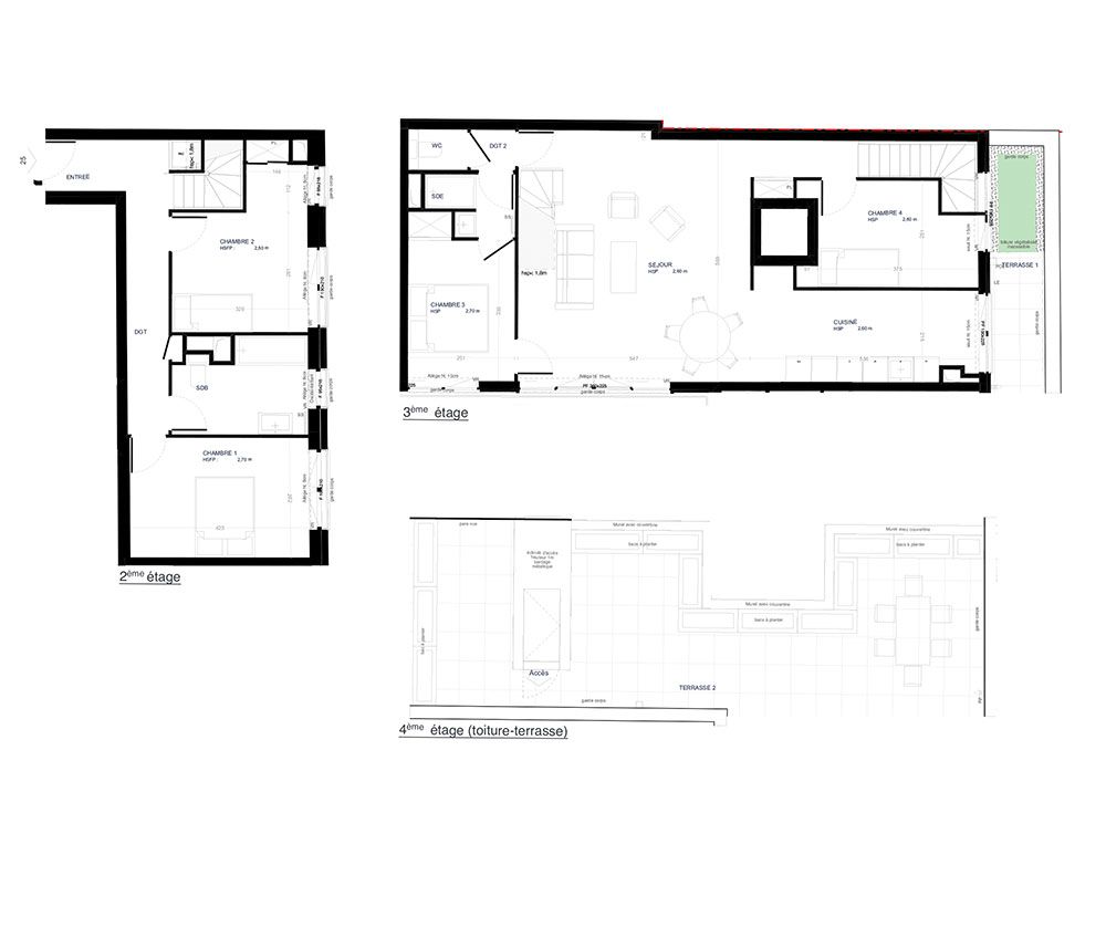
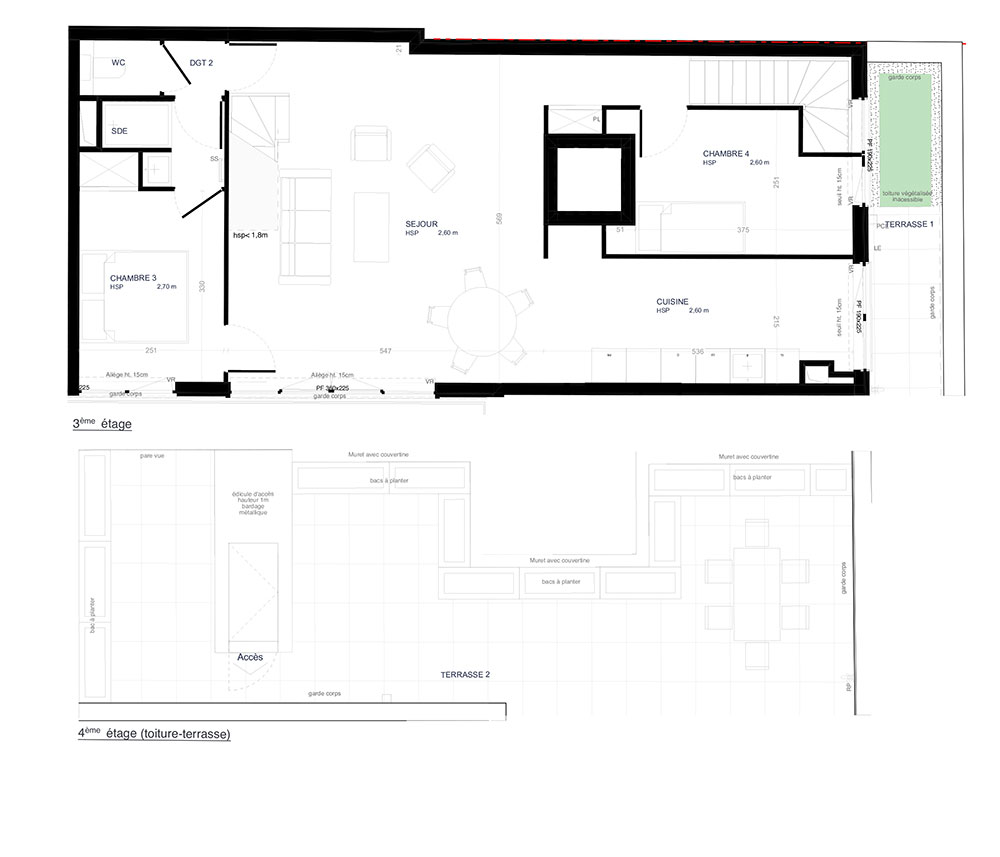
Appartement T5 n°25 à Courbevoie (92400)
Prix : nous consulter
157 Timbaud à Courbevoie
À noter
- Courbevoie
- Livraison 3ème trimestre 2026
- Votre suivi personnalisé Peterson.fr
- Garanti prix direct promoteur
Prestations et équipements
À propos du programme
Prenez rendez-vous dès maintenant pour réserver un des appartements avec rooftop et vue incroyable près de Paris ! Choisissez de vivre ou investir à Courbevoie, commune privilégiée des Hauts-de-Seine, dans une rue calme et charmante, proche des commodités alentours (5 min à pied seulement du très apprécié Marché Marceau et des commerces, écoles, restaurants, 20 min (ligne L) de St Lazare, 15 min (T2) de La Défense. Ce quartier recherché, répond à tous les besoins du quotidien. 9 appartements de standing, du studio au 5 pièces. Disposant tous d'un magnifique prolongement extérieur (jardin, balcon ou rooftops avec vue dégagée) et de très belles prestations dont de généreuses hauteurs sous-plafond. Le calme et l'élégance caractériseront cette résidence à taille humaine conçue par GCG Architectes qui signe également la décoration des parties communes ; l'aménagement paysager des extérieurs a fait l'objet d'une attention toute particulière pour faire de cette adresse, une adresse d'exception.
Courbevoie
En travaux

Accédez à notre page dédiée au programme "157 Timbaud" pour tout savoir sur la résidence, ses prestations et son quartier.
Autres biens disponibles
Découvrez le nouveau projet immobilier « 157 Timbaud »
Le programme immobilier neuf « 157 Timbaud » s'installe à Courbevoie. Ce programme compte 4 appartements et duplex neufs et 4 d'entre eux sont toujours disponibles. Les biens présents dans ce projet sont de type Studio, T4 et T5. Il est important de noter que les logements sont éligibles au dispositif de droit commun. Pour prendre possession des lieux, cela sera possible au troisième trimestre 2026.





