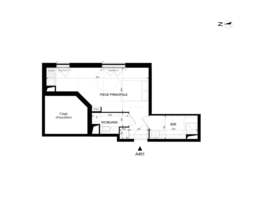
Appartement T1 n°A401 à Asnières-sur-Seine (92600)
Prix : nous consulter
Alter Ego à Asnières-sur-Seine
À noter
- Asnières-sur-Seine
- Livraison 4ème trimestre 2028
- Résidence principale/secondaire
- Investissement locatif
- Votre suivi personnalisé Peterson.fr
- Garanti prix direct promoteur
À propos du programme
Devenez propriétaire dans une résidence idéalement située à 6 minutes à pied seulement du Métro ligne 13 et du Tramway T1. Appartements neufs du studio au 5 pièces duplex aux prestations soignées et avec surfaces extérieures (balcon, terrasse ou jardin pour la plupart). Stationnements en sous-sol. Labels Santé+ et BEE, réglementation RE2020, pour un confort de vie optimal.
Asnières-sur-Seine
En travaux

Accédez à notre page dédiée au programme "Alter Ego" pour tout savoir sur la résidence, ses prestations et son quartier.
Autres biens disponibles
Tout ce qu'il faut comprendre sur le nouveau programme immobilier « Alter Ego »
Asnières-sur-Seine inclut le programme « Alter Ego » à son parc immobilier. Ce projet comporte 65 duplex et appartements neufs qui se joignent au parc immobilier local. 65 d'entre eux restent toujours sur le marché. De type Studio, T2, T3, T4 et T5, si vous cherchez une résidence principale ou secondaire ou encore un investissement locatif, ils seront adaptés à votre projet. Veuillez noter que les logements sont éligibles aux dispositifs de droit commun, LMNP (loueur en meublé non professionnel) hors bail commercial et BRS. Pour investir les lieux, cela sera possible à la fin de l'année 2028.
Investissez malin !
Ce programme peut bénéficier de nombreux avantages financiers adaptés à votre projet immobilier neuf :
Je recherche un bien pour...



