Maison T3 n°5001 à La Rochelle (17000)
Prix : nous consulter
Hyphen - Maisons à La Rochelle
À noter
- La Rochelle
- Livraison 4ème trimestre 2028
- Résidence principale/secondaire
- Investissement locatif
- Votre suivi personnalisé Peterson.fr
- Garanti prix direct promoteur
Prestations et équipements
À propos du programme
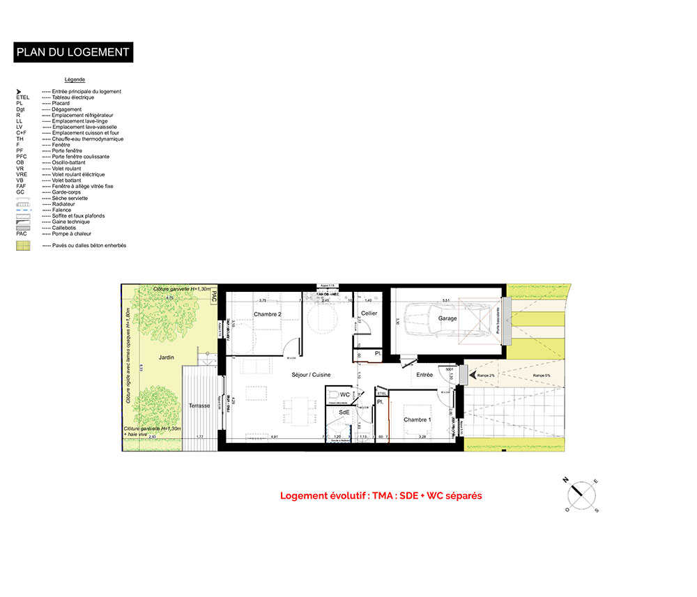
Votre maison neuve « clé en main » à La Rochelle dans esprit village au coeur de la ville-portHyphen*, comme un trait d'union entre ville et village, entre plages et marais, entre océan et vie urbaine, entre gare TGV à 700 m. et port des Minimes. Tout ce que La Rochelle offre de meilleur. Les 5 maisons de plain-pied et de 3 pièces proposées, sont toutes prolongées d'un jardin privatif avec terrasse au calme de la ruelle privée de la résidence, et disposent d'un garage. Au quotidien, vous ferez alors le choix entre vélo et voiture. Côté confort, la chaleur de votre cocon sera assurée par une pompe à chaleur individuelle. Avec les maisons Hyphen, choisissez un mode de vie différent et sans égal à La Rochelle : entre Vieux-Port et authenticité du quartier Tasdon et balades du marais éponyme. L'adresse parfaite pour une première acquisition ou vous offrir une villégiature. Renseignez-vous à notre espace de vente à La Rochelle, 5 rue Gargoulleau. Ouvert du mardi au samedi. (*Trait d'union)
La Rochelle
En travaux

Accédez à notre page dédiée au programme "Hyphen - Maisons" pour tout savoir sur la résidence, ses prestations et son quartier.
Autres biens disponibles
Introduction au programme neuf « Hyphen - Maisons »
Le programme immobilier neuf « Hyphen - Maisons » se situe à La Rochelle. Ce projet se compose du 27 maisons et appartements neufs, dont 27 sont encore sur le marché pour le moment. Allant du T1 au T3, ils vous permettront d'investir dans une résidence principale ou secondaire ou bien de vous lancer dans un investissement locatif. Notez que les biens seront livrés à la fin de l'année 2028 et qu'ils sont éligibles au dispositifs Jeanbrun, LMNP (loueur en meublé non professionnel) hors bail commercial et de droit commun.



