Appartement T2 n°A402 à Deux Croix - Banchais - Grand-Pigeon Angers (49100)
Prix : nous consulter
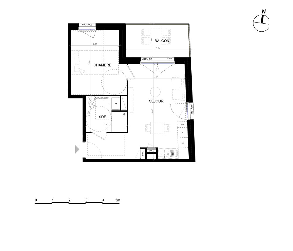
Epure à Deux Croix - Banchais - Grand-Pigeon - Angers
À noter
- Angers
- Livraison 4ème trimestre 2028
- Résidence principale/secondaire
- Investissement locatif
- Votre suivi personnalisé Peterson.fr
- Garanti prix direct promoteur
Prestations et équipements
À propos du programme
A seulement 1h30 de Paris, Angers séduit par sa qualité de vie, son attractivité économique et universitaire. Idéalement située Rue Joseph Cussonneau, votre nouvelle résidence Vinci Immobilier s’inscrit au cœur du Quartier Montaigne, nouveau lieu de vie parfaitement connecté à la métropole, apprécié pour sa proximité avec le centre-ville, les transports, les écoles et les pôles d'activités. La résidence propose des appartements du Studio au 4 pièces dotés de prestations soignées et de beaux espaces extérieurs. Des stationnements privatifs et des locaux vélos complètent les prestations.
À seulement 3 min à pied, l’arrêt de tramway Montaigne permet de rejoindre rapidement le centre-ville d’Angers et la gare SNCF Angers Saint-Laud en moins de 10 min. Le quartier est particulièrement recherché pour sa proximité immédiate avec les écoles, dont le collège Montaigne, accessible en moins de 5 min à pied, ainsi que les pôles universitaires facilement desservis en tramway et à vélo.
À proximité immédiate des commerces, des équipements sportifs et du centre commercial Espace Anjou, ce nouveau programme bénéficie également d’un accès rapide aux grands axes routiers A87/A11. Les cheminements piétons et pistes cyclables environnants favorisent les mobilités douces et un quotidien serein.
Quartier étudiants, Zone urbaine
Deux Croix - Banchais - Grand-Pigeon
En travaux

Accédez à notre page dédiée au programme "Epure" pour tout savoir sur la résidence, ses prestations et son quartier.
Autres biens disponibles
Découvrez le projet neuf « Epure »
Angers bénéficie du programme immobilier neuf « Epure ». Ce programme comprend 67 appartements neufs, dont 67 sont encore disponibles pour le moment. Allant du T1 au T3, ils sont adaptés à l'investissement locatif mais peuvent également convenir pour une résidence principale ou secondaire. À la fin de l'année 2028, les logements seront terminés et sachez qu'ils sont éligibles au dispositif de droit commun.
Investissez malin !
Ce programme peut bénéficier de nombreux avantages financiers adaptés à votre projet immobilier neuf :
Je recherche un bien pour...

