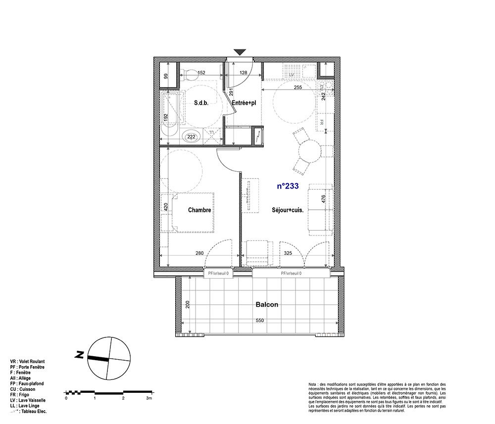
Appartement T2 n°233 à Faverges-Seythenex - Faverges (74210)
Prix : nous consulter
Résidence Horizon à Faverges-Seythenex - Faverges
À noter
- Faverges-Seythenex - Faverges
- Livraison 4ème trimestre 2028
- Résidence principale/secondaire
- Investissement locatif
- Votre suivi personnalisé Peterson.fr
- Garanti prix direct promoteur
Prestations et équipements
À propos du programme
Devenez propriétaire dans le centre de Faverges, découvrez la résidence Horizon ! Idéalement située au centre de Faverges, à deux pas de tous les commerces, cette nouvelle résidence vous offre un cadre de vie où confort, nature et praticité se rencontrent harmonieusement. À seulement quelques minutes du lac d'Annecy, elle s'inscrit dans un environnement verdoyant et apaisant, propice au bien être et à la sérénité. La résidence est implantée au coeur d'un espace paysager soigneusement aménagé, agrémenté d'une mare naturelle, véritable havre de biodiversité. Du studio au 4 pièces, les appartements sont lumineux, fonctionnels et bien agencés, ils bénéficient tous d'un espace extérieur privatif : jardin pour les rez de chaussée, balcon ou loggia pour les étages, afin de prolonger votre intérieur vers l'extérieur en toute saison. Pour un confort optimal au quotidien, la résidence dispose également de garages fermés en sous sol. Une opportunité rare de devenir propriétaire dans un cadre d'exception !
Faverges-Seythenex - Faverges
En travaux

Accédez à notre page dédiée au programme "Résidence Horizon" pour tout savoir sur la résidence, ses prestations et son quartier.


