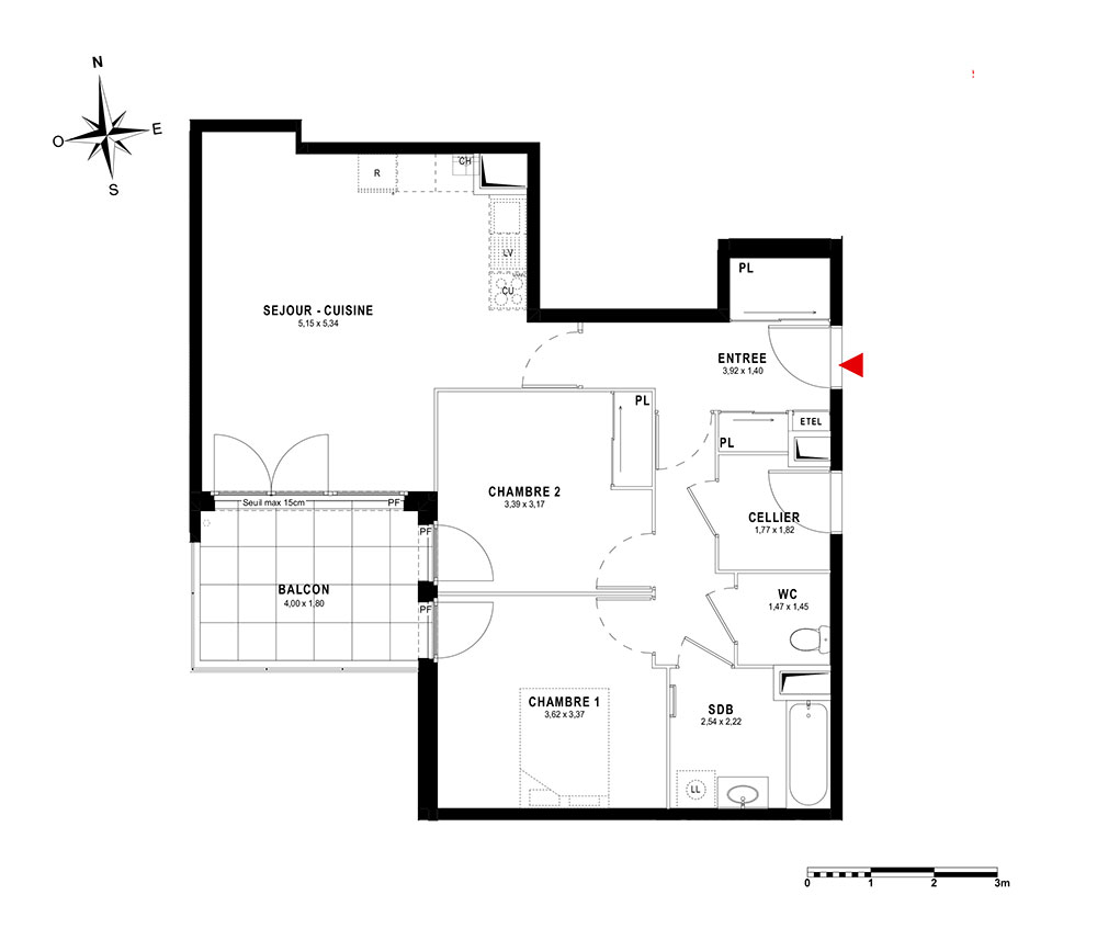
Appartement T3 n°128 à Ambilly (74100)
Prix : nous consulter
Côté Helvétie à Ambilly
À noter
- Ambilly
- Livraison 1er trimestre 2028
- Résidence principale/secondaire
- Investissement locatif
- Votre suivi personnalisé Peterson.fr
- Garanti prix direct promoteur
Prestations et équipements
À propos du programme
Signée par l'atelier 58 Bis Architectes, la résidence s'inscrit avec élégance dans son environnement pavillonnaire. Composée de deux bâtiments à taille humaine, elle adopte une architecture contemporaine, sobre et équilibrée. Le jeu de volumes, les teintes gris clair et gris soutenu des façades, et les matériaux de qualité - fer plat, bois, enduits texturés -renforcent l'harmonie de l'ensemble. L'intégration paysagère et les lignes épurées traduisent une volonté claire : proposer un lieu de vie serein, durable et esthétique. Déclinés du 2 au 5 pièces, les appartements se distinguent par des agencements soignés et lumineux. Chaque logement bénéficie d'un espace extérieur privatif - balcon, terrasse ou jardin - pour un confort au quotidien et une véritable ouverture sur la nature. Certains séjours en angle profitent d'une double orientation, maximisant la lumière naturelle. Pensés pour le bien-être, tous les logements sont prolongés d'un cellier sur le palier, et dotés de prestations de qualité alliant confort, sécurité et design.
Ambilly
En travaux

Accédez à notre page dédiée au programme "Côté Helvétie" pour tout savoir sur la résidence, ses prestations et son quartier.

